Co je „Co-Living“?
Kvůli vysoké poptávce po sociálním bydlení vytvořil globální architekti SQL nový koncept sociálního bydlení. Pojmenovali jsme jej „Společné bydlení“ vyjadřující základní myšlenku kombinování přehlížených skupin v naší společnosti z hlediska konceptů bydlení. Naším cílem bylo kombinovat bydlení nezadaných, rodin s jedním rodičem a více než 55 párů, které sdílejí omezený rozpočet, v pohodlném prostředí, ale nemusí být nutně konfrontováno s industriální mono vypadající architekturou, která postrádá obecnou estetiku. Naše kondominium je postaveno s doslova minimálním rozpočtem, aniž bychom se vzdali kvalit, a splňuje mnoho předpisů o minimálních energetických požadavcích. Tři typy bytů, sdílené pracovní prostory a společná zahrada dokončují konfiguraci při použití jednoho základního konceptu bytu, čímž šetří stavební náklady.
Nasazení a půdorysy
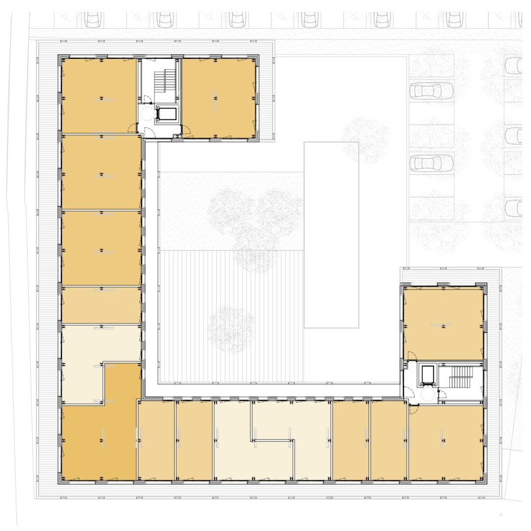
Typické nasazení
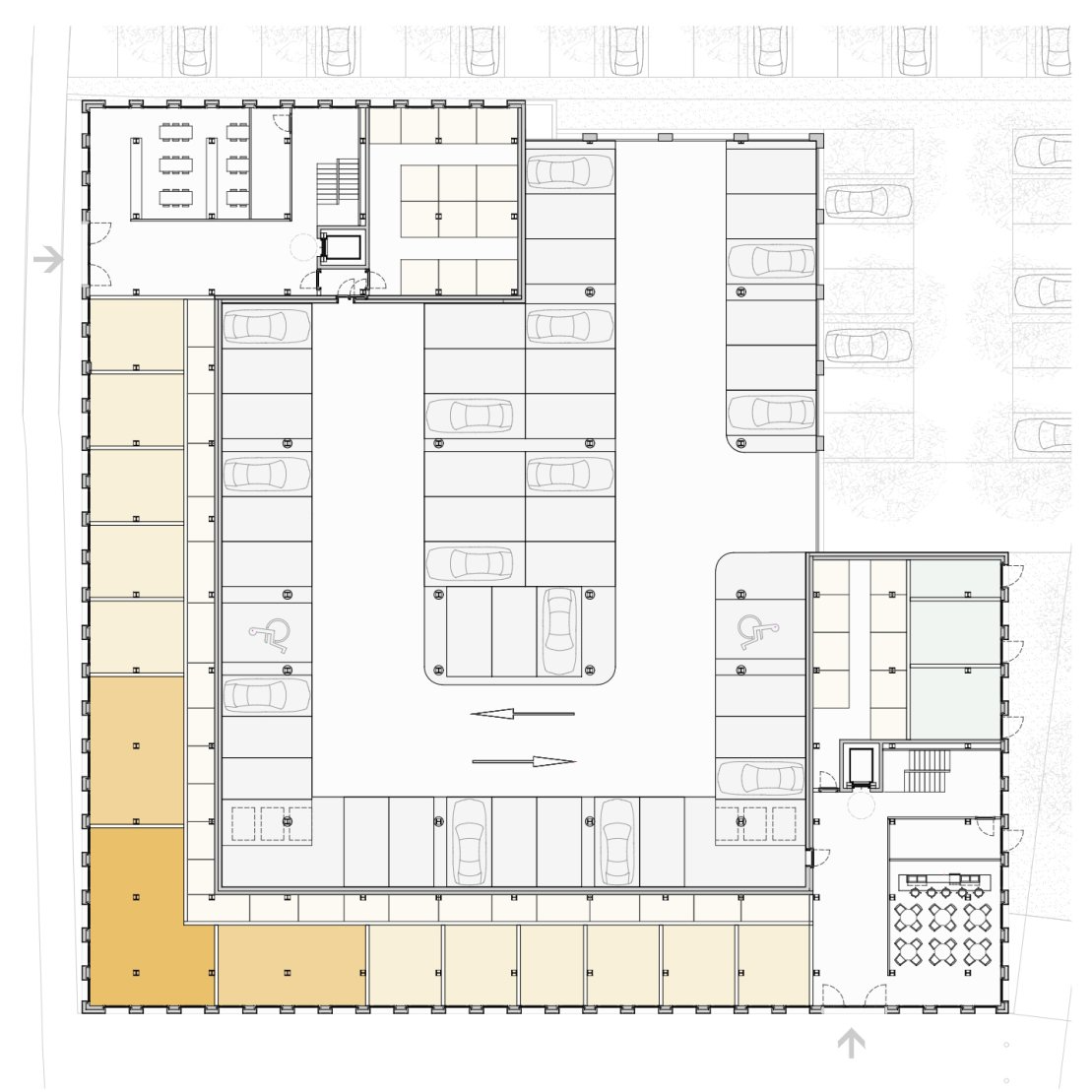
KonfiguracePřízemí s parkovištěm
Digitální prUkázková typologie bytů A, B a C.
KonfiguraceStandardní stavební bloky skládající kondominium
Identifikace základního stavebního bloku
Konfigurace2 stavební bloky tvořící standardní byt
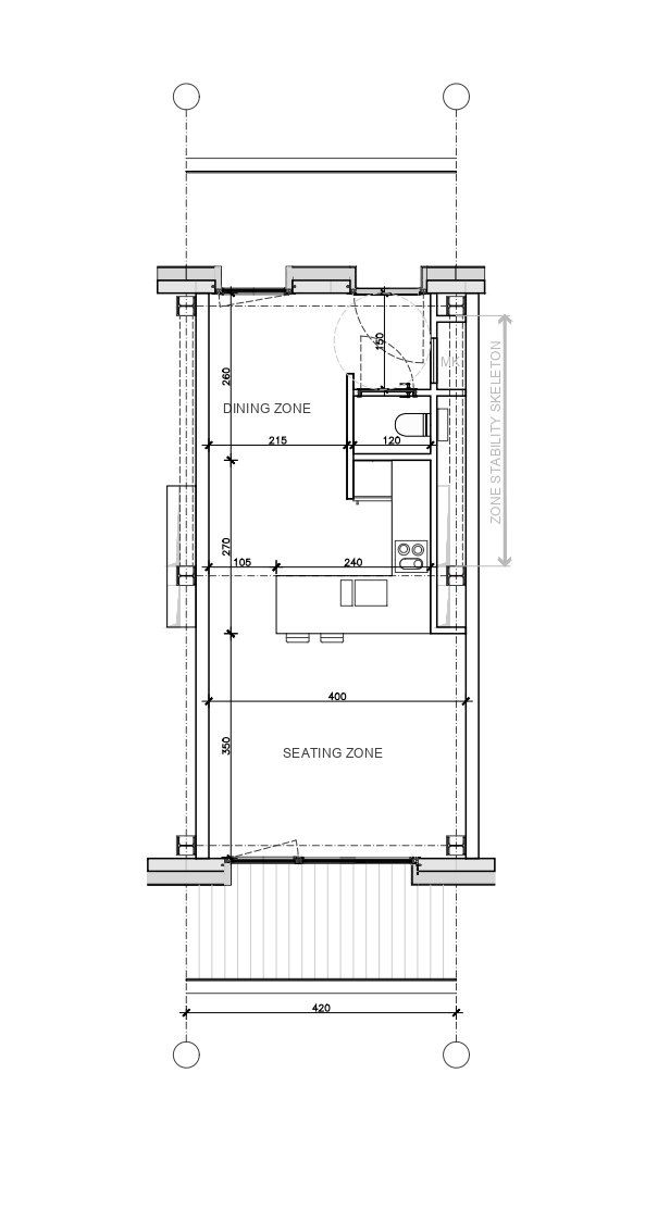
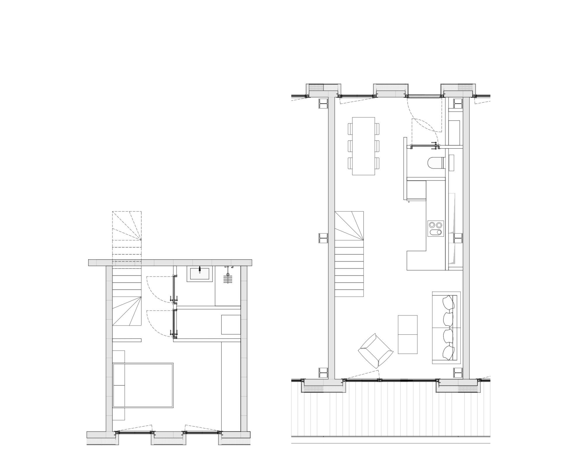
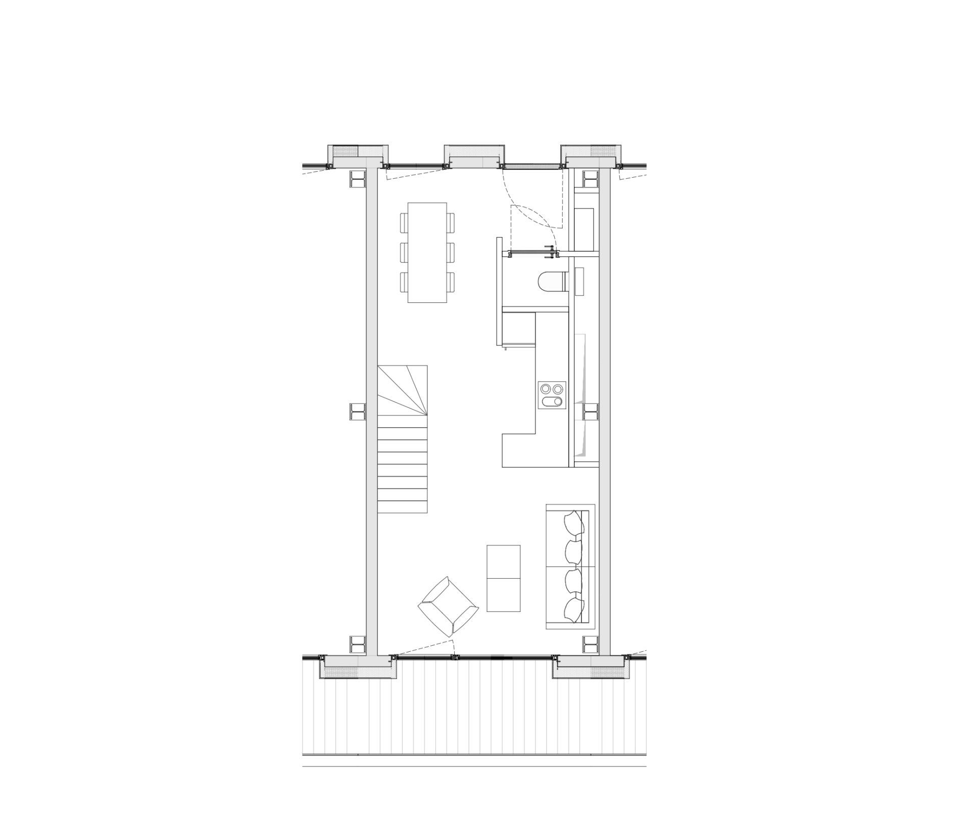
KonfiguraceTyp apartmánu „Podlaha“
Sociální bydlení pro nezadané, základní modul 36 m2 s rozšiřujícím modulem. 2 byty složené do obdélníkového tvaru.
Přečtěte si více
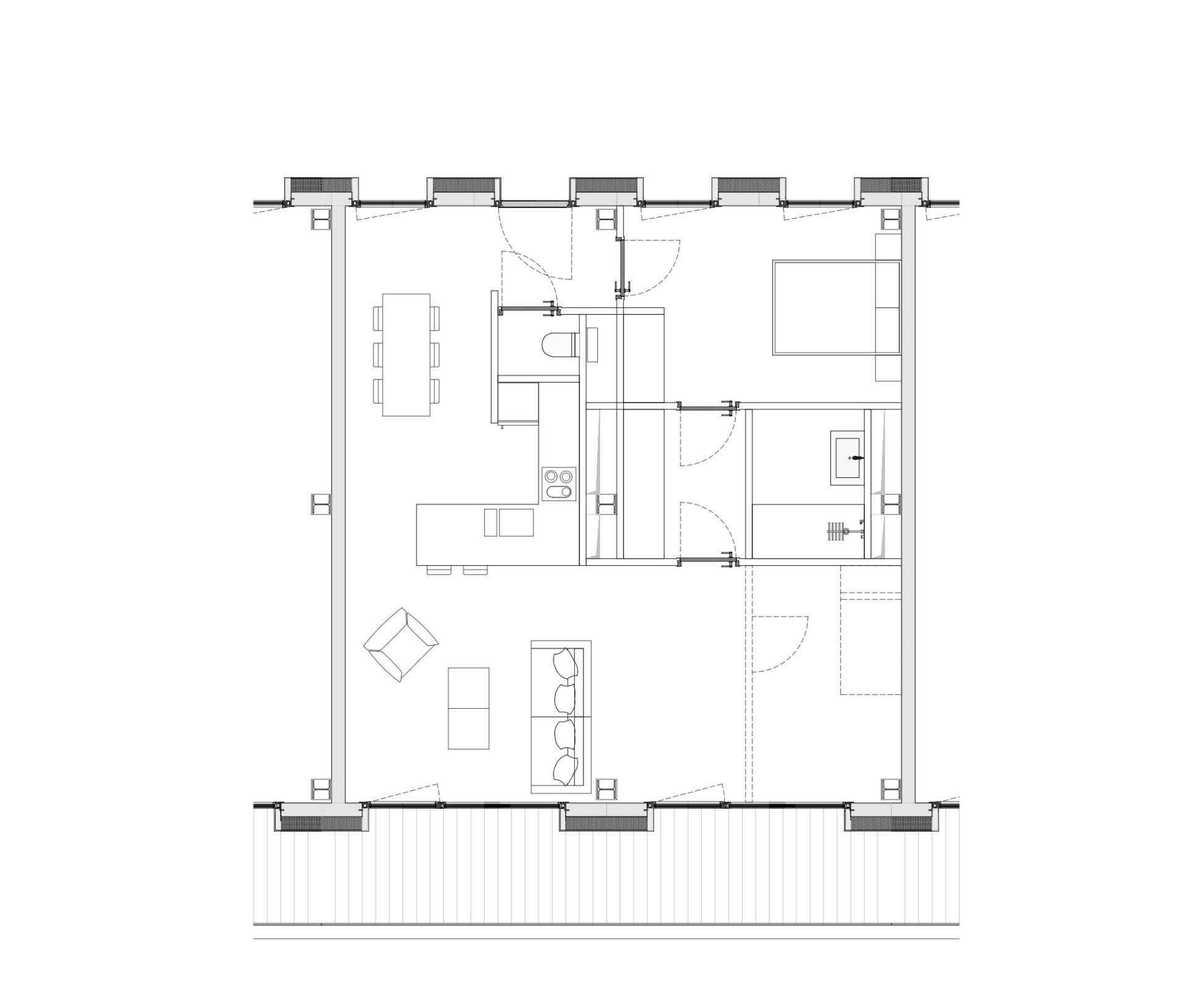
Typ bytu „Duplex“
Sociální bydlení pro nezadané, základní modul 36 m2 s rozšiřujícím modulem. 2 byty složené do obdélníkového tvaru.
Přečtěte si více
Typ bytu „Sanne & Joep“
Sociální bydlení pro nezadané, základní modul 36 m2 s rozšiřujícím modulem. 2 byty složené do obdélníkového tvaru.
Přečtěte si více
Typ apartmánu ´Frans & Janny´
Sociální bydlení pro nezadané, základní modul 36 m2 s rozšiřujícím modulem. 2 byty složené do obdélníkového tvaru.
Přečtěte si více
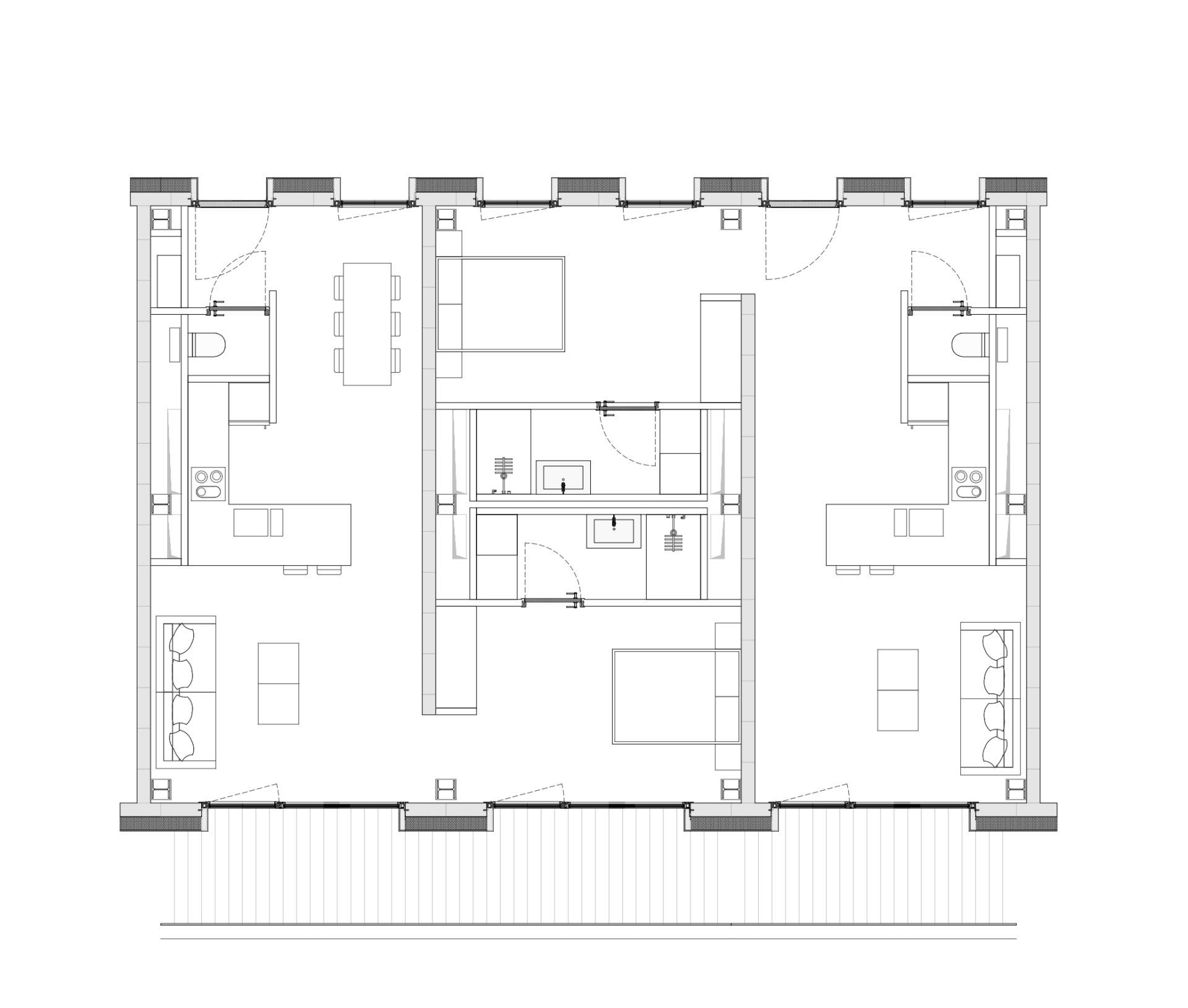
Půdorysy bytu
Vyhovuje dnešním předpisům o používání energie Vysoká energetická účinnost zajišťuje soulad s nejpřísnějšími stavebními předpisy
Dostupné domy na úsporu energie, vaše jedinečné postavení na trhu












































